Rosario Gigli
Architetto
Home
Services
Projects
Staff
News
Contacts
ENG
ITA
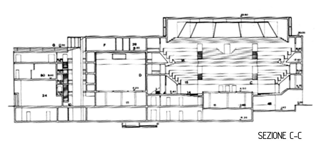
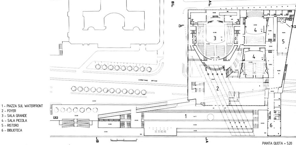
Auditorium Copenaghen
Back
Name
Phone
Email
Message*
Feedback